CASA Immobilier vous propose en Exclusivité à ROSNY-SOUS-BOIS, rue Roger Salengro, Plateau d'Avron, à 12 mn à pied du RER E Rosny, ce très grand Pavillon sur 3 étages, de 250 m² + garage et accès véhicules, le tout sur 400 m² de terrain. Découvrez dès maintenant ce pavillon grâce à sa Visite VIrtuelle 36°.
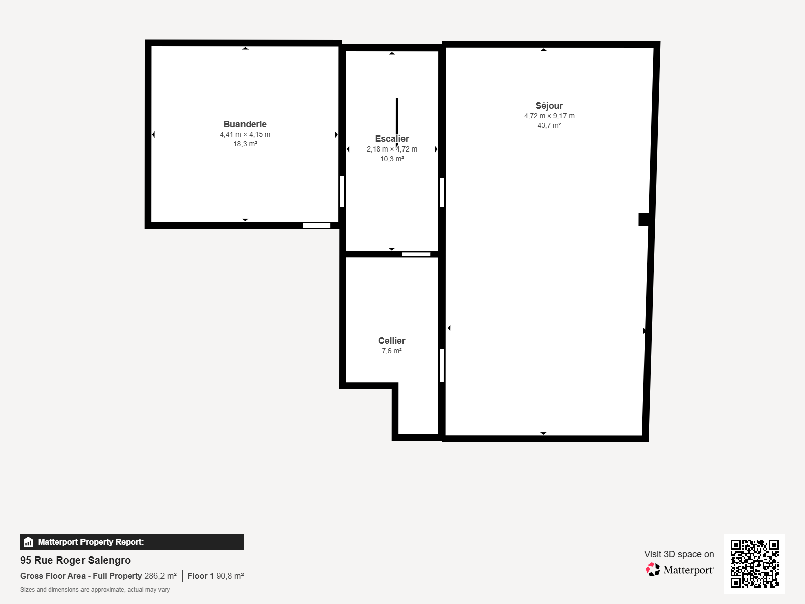
Niveau 1 : donnant sur jardin arrière : Séjour de 44 m², grand cellier, atelier, wc, chambre avec lavabo donnant sur terrasse et jardin.
Niveau 2 : Grande entrée de 20 m² sur l'avant du pavillon, séjour de 18m², cuisine, chambre, salle d'eau, wc.
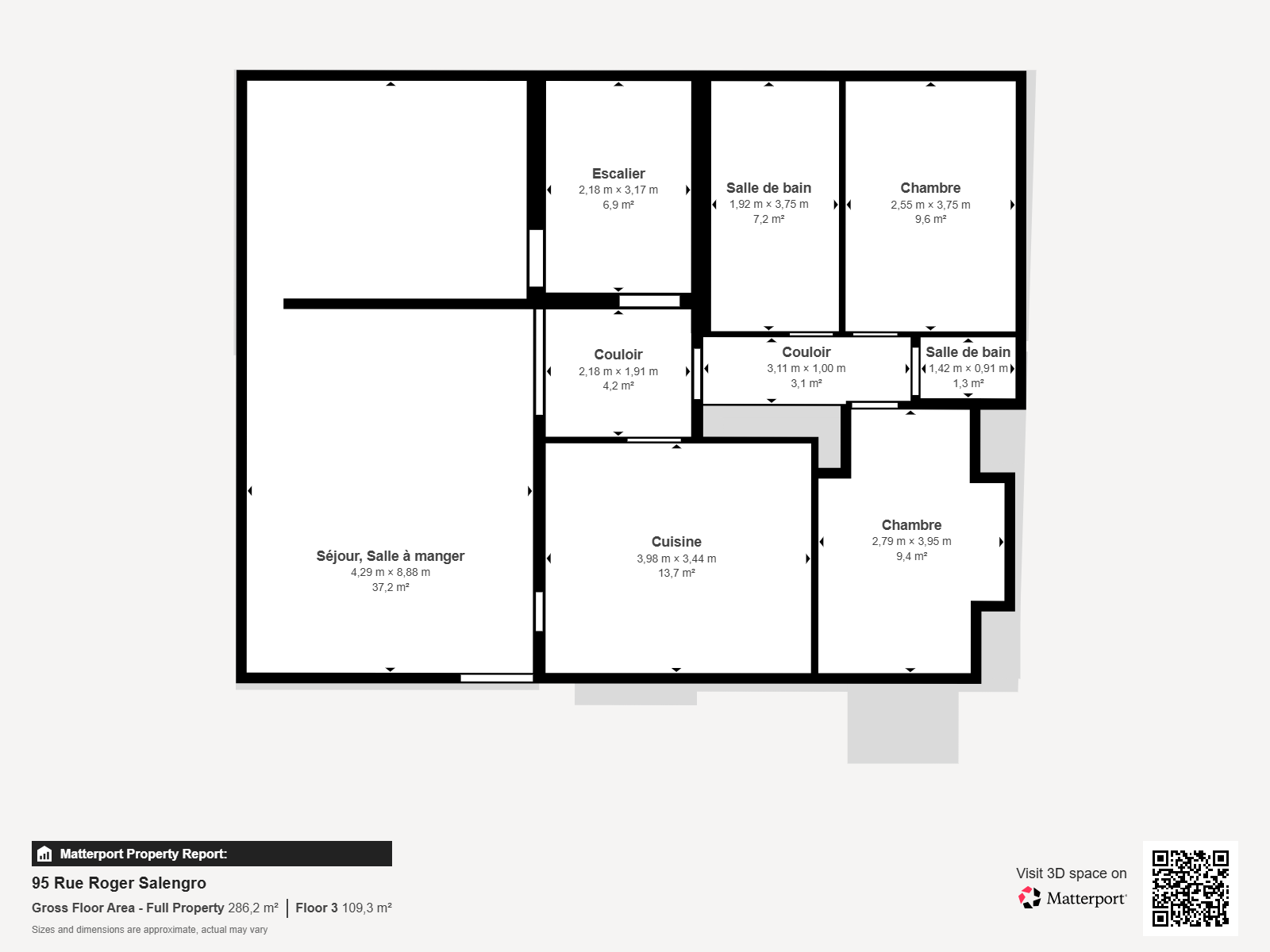
Niveau 3 : couloir, séjour de 38 m² avec cheminée, balcon filant, grande cuisine donnant sur balcon, 2 chambres, salle de bains, wc.
Grenier.
Classe énergie : D
Honoraires charge vendeur. Agent Immobilier.
Les informations sur les risques auxquels ce bien est exposé sont disponibles sur le site Géorisques : www.georisques.gouv.fr

