CASA Immobilier vous propose en Exclusivité à DRANCY, proche du Collège Jorissen, ce Pavillon F4 de 66 m² avec un terrain de 200 m², mitoyen d'un côté, sous-sol total avec garage :
- Rdc surélevé : entrée, séjour, cuisine, wc, balcon avec accès jardin.
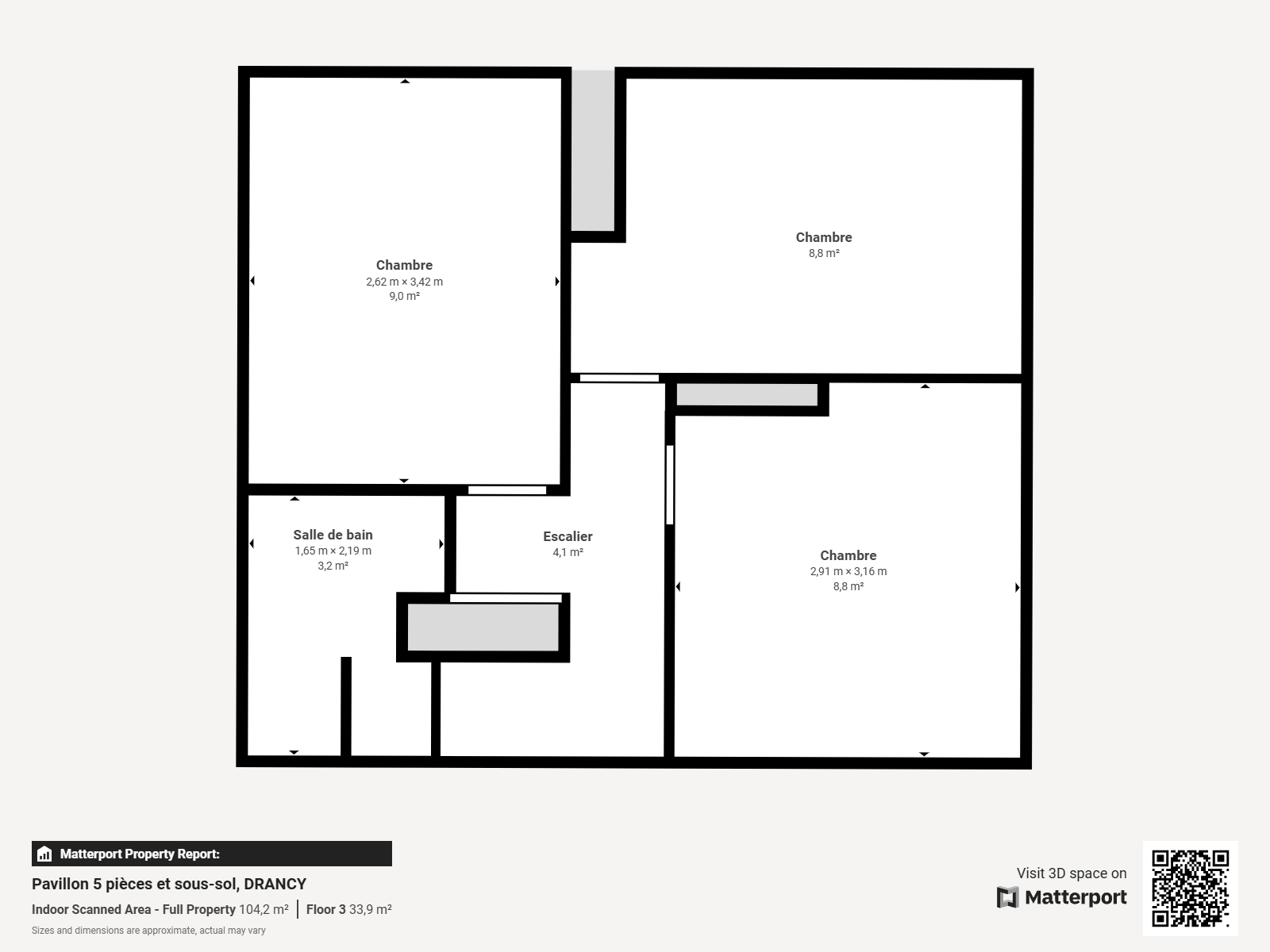
- Etage : 3 chambres, salle d'eau.
- Sous-sol total en 1/2 niveau avec garage.
Classe énergie : E (chauffage gaz).
Découvrez ce pavillon dès maintenant grâce à sa Visite Virtuelle 360° disponible chez CASA Immobilier.:
Bien soumis au statut juridique de la Copropriété. Charges annuelles de copropriété (Montant moyen annuel quote-part du budget prévisionnel vendeur) : 84 € (ancien lotissement)
Honoraires charge vendeur. Agent Immobilier.
Les informations sur les risques auxquels ce bien est exposé sont disponibles sur le site Géorisques : www.georisques.gouv.fr

