Maison 7 pièce(s) 4 chambre(s) 130 m²
Bilan énergétique
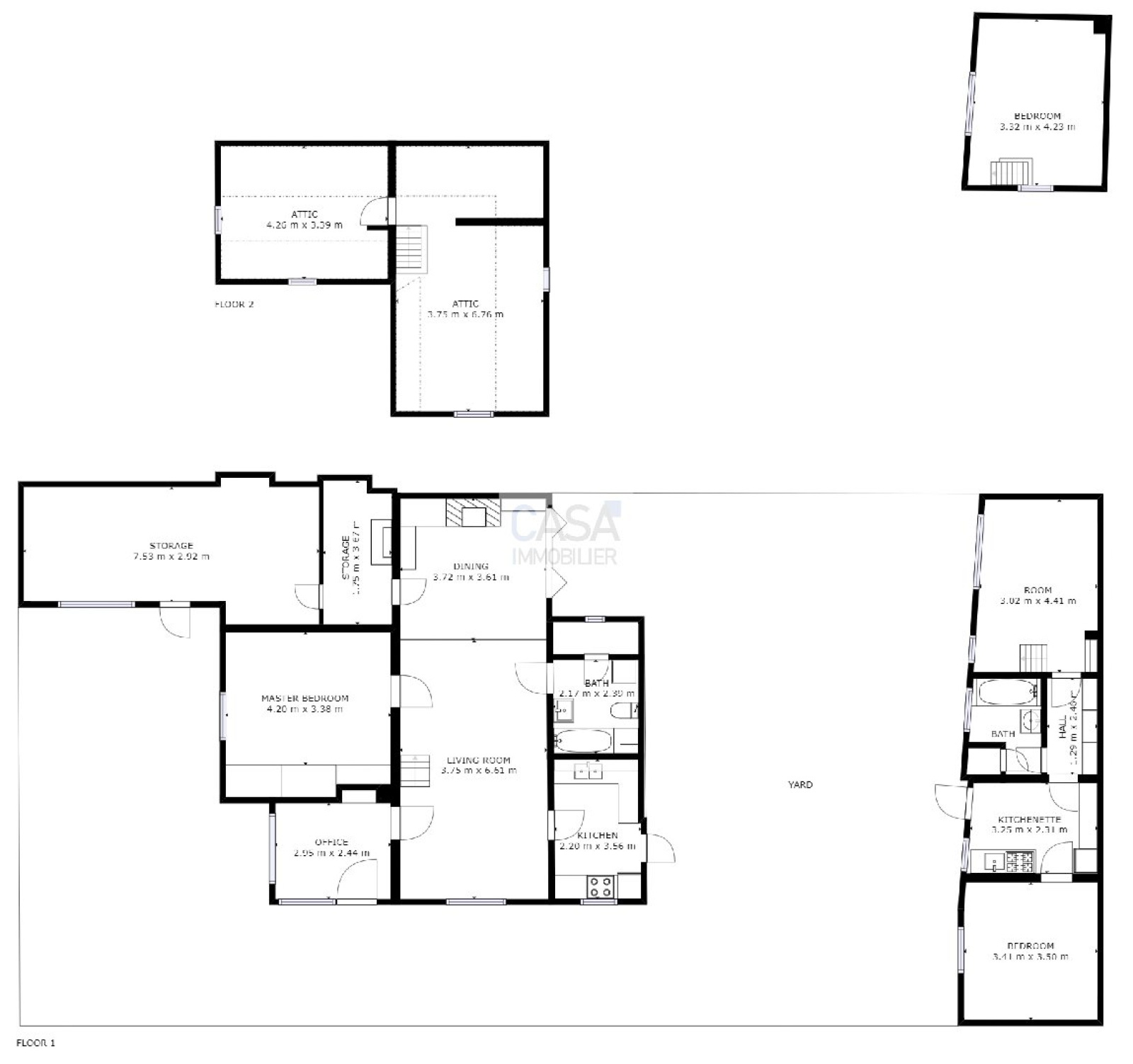
Diagnostics énergetiques- Surface 130 m²
- terrain 384 m²
- séjour 36,68 m²
- 4 chambre(s)
- 2 salle(s) de bain
- Chauffage individuel : autre (gaz)
- 1 garage(s)
- -1 côté(s) mitoyen(s)
- 1 étage(s)
- cave
- arboré
- quartier FREINVILLE
Composition
Composition de ce bienRez-de-chaussée
- cuisine 7.62 m²
- séjour double 36.5 m²
- bureau 7.21 m²
- chambre 17.15 m²
- salle de bains 5.31 m²
- wc 1.46 m²
- cellier m²
- garage m²
- chambre 10 m²
- grenier m²
- cuisine 7.57 m²
- chambre 12 m²
- couloir 3.83 m²
- sdb avec wc 4.56 m²
- salon 14.22 m²
- chambre 14.08 m²

